Helle Gewerbeeinheit in ruhiger Lage von Finowfurt (1866)
Objektdaten
Objekt ID
2637927
Objektart
buero_praxen
Objekttyp
Bürofläche
Kaltmiete
700,00 €
Stellplätze
Ja
Provision
1540
Zimmer
3.0

Objektbeschreibung
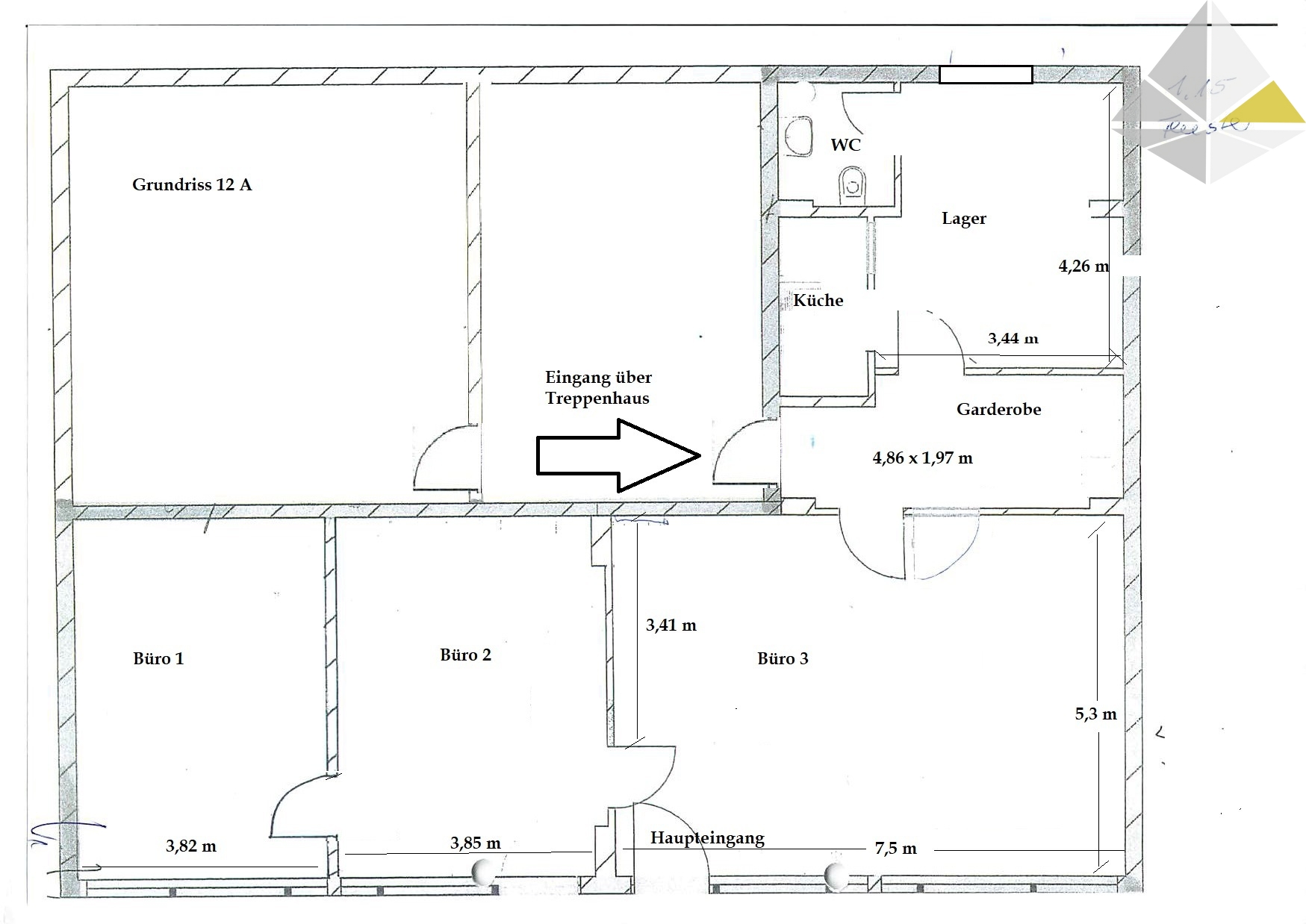
Heute können wir Ihnen eine Gewerbeeinheit in absolut ruhiger Lage im Gewerbepark zur Miete in Finowfurt anbieten. Die hier angebotene Einheit verfügt über eine Gesamtfläche von ca. 110 m² und unterteilt sich in 3 Büroräume, einem Lager, einer kleinen Küche und einem WC. Die Aufteilung der Räume ist veränderbar. Details der Nutzung können besprochen werden. Eine Anmietung kann vereinbart werden. Zu der Einheit gehören zwei PKW-Stellplätze. Die Räume eignen sich sehr gut als Büro. Für die Übernahme des neuwertigen Büromobiliars und Geräte ist eine Abstandszahlung gewünscht.
Objektlage
Die junge aufstrebende Gemeinde Schorfheide mit ihrem OT Finowfurt befindet sich im Landkreis Barnim. Diese erreichen Sie bequem über die Autobahn A 11. Der Ort liegt ca. 45 km von Berlin entfernt. Die nahe gelegene Kreisstadt Eberswalde verfügt über eine direkte Bahnverbindung nach Berlin, ideal für Berufspendler. Das öffentliche Verkehrswegenetz wie Bus- und Bahnverbindungen ist ausgezeichnet ausgebaut. In dieser üppigen Wald- und Seenlandschaft, angrenzend am Biosphärenreservat Schorfheide-Chorin, dem historisch bekannten Werbellinsee und dem Finowfurter Üdersee finden Sie Ruhe und Erholung vom stressigen Alltag. Die kurzen Wege in die Hauptstadt lassen Kultursuchende nicht zu kurz kommen. Beliebte Ausflugsziele wie z. B. der Wildpark Schorfheide, der Zoo Eberswalde sowie die Fachhochschule in der Kreisstadt erreichen Sie in Kürze. Der Ort Finowfurt verfügt über eine hervorragende Infrastruktur: Sie finden eine Grundschule, eine weiterführende Schule, drei Kita, mehrere Zahnärzte, Allgemeinmediziner, ein MVZ (Medizinisches Versorgungszentrum mit mehreren Ärzten unterschiedlicher Fachrichtungen), eine Bank, eine Apotheke, einen Optiker, drei Supermärkte, ein Gewerbegebiet mit mehreren Autohäusern ansässig und anderen Dienstleistern und Firmen, sowie ein großes Fachmarktzentrum. Die Gemeinde Schorfheide ist insgesamt und im Besonderen der hier vorgestellte Ortsteil Finowfurt, eine aufstrebende, attraktive Gemeinde und bei jungen Familien äußerst beliebt.
Ausstattung
Barrierefrei
Ausstattungsbeschreibung
+ 4 Räume
+ Küche
+ WC
+ alle Büros mit großen Schaufenstern
+ Bodenbeläge: 3 Räume mit Laminat, 1 Raum mit Textilbelag
+ Fußbodenheizung zentral
+ Internet 250 MBit;
Sonstige Angaben
Für die Erstkontaktaufnahme wählen Sie bitte den Emailverkehr. Danke!
Trotz gewissenhafter Erstellung des Exposés können Irrtümer auftreten. Eine Haftung dafür schließen wir ausdrücklich aus. Der Zwischenverkauf bleibt vorbehalten. Die Verhandlungen mit dem Verkäufer sind stets freibleibend, vorbehaltlich des Zwischenverkaufs sowie vorbehaltlich der Zustimmung des Verkäufers. Schadensersatzansprüche aus Beratungs-, Finanzierungskosten etc. werden nicht anerkannt bzw. übernommen. Alle Informationen sind Informationen des Verkäufers. Besichtigungen vereinbaren Sie bitte unter 0172 6487308 mit Herrn Peter Preuß.
Ansprechpartner
Peter Preuß


-scaled.jpg)
.jpg)
-scaled.jpg)

-scaled.jpg)
-scaled.jpg)


